Trilocale in vendita

Foggia, Via Gualtiero Guiscardi - Candelaro
€ 99.000
3 locali 3 locali
96 Mq 96 Mq
1 bagno 1 bagno

Trilocale in vendita

Foggia, Via Gualtiero Guiscardi - Candelaro

Descrizione annuncio

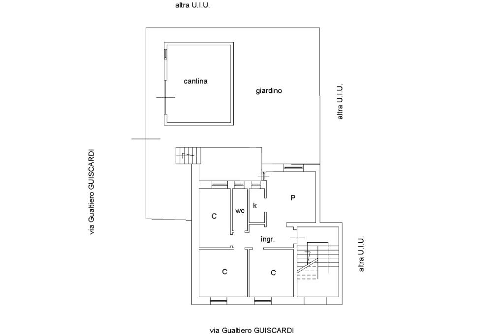
Zona Candelaro - Via Gualtiero Guiscardi - Proponiamo in vendita immobile composto da 3 vani oltre accessori al piano rialzato.

L'imomobile si presenta allo stato originale con pavimentazione in ceramica, infissi in anticorodal e alluminio, porte in legno ed impianti idrico ed elettrico da rivedere.

Esposizione doppia e angolare.

Completa la soluzione giardino di 100 mq.

Seguici anche su facebook e su instagram, cliccando 'mi piace' sulla pagina 'Agenzia Tecnocasa Zona Parco San Felice' .
Scarica gratuitamente anche l'App Tecnocasa sul tuo smartphone e sarai sempre aggiornato sulle nostre proposte di vendita e locazione.

Se hai bisogno di una consulenza reddituale per accedere ad una richiesta di mutuo possiamo esserti d'aiuto poichè è possibile, previo appuntamento, direttamente nella nostra agenzia, incontrare un Collaboratore di Kiron Partner SpA la società di mediazione creditizia del Gruppo Tecnocasa .

LA CONSULENZA E' GRATUITA.

Mostra tutto

Nelle vicinanze

Trasporto pubblico Trasporto pubblico
stazione di Foggia
stazione di Foggia
1,8 Km
fermata autobus
fermata autobus
110 m
V.le Candelaro (Caldarazzo)
V.le Candelaro (Caldarazzo)
210 m
Ricariche auto elettriche Ricariche auto elettriche
Daunia Soccorso Foggia | EnelX
2,0 Km
Concessionario Nissan Renauto S.P.A.
2,2 Km
Enel PAN Foggia Viale degli Aviatori
2,4 Km
Scuole Scuole
Istituto Comprensivo Santa Chiara, Pascoli e Altamura
150 m
Istituto Suore pie Operaie S. Giuseppe
490 m
Ugo Foscolo
560 m
Scuola dell'Infanzia "Giulia Catalano"
650 m
Scuola Elementare "Giulia Catalano"
660 m
Farmacia Farmacia
Farmacia Candelaro - Mazzamurro
150 m
Sacro Cuore
350 m
D.ssa Prencipe
570 m
Sant'Anna
670 m
Farmacia Centrale
800 m
Ospedali Ospedali
Dipartimento Dipendenze Patologiche
410 m
Casa della Divina Provvidenza Ospedale "Don Uva"
590 m
Ospedali Riuniti di Foggia
1,4 Km
Casa di Cura "Maria Grazia Barone"
1,8 Km
Medicina Universitaria
1,9 Km
Supermercati Supermercati
Sigma
280 m
MD
350 m
EuroSpin
520 m
Penny
640 m
Supermercati dok
1,0 Km
Negozi Negozi
Panificio Pizzeria Caposeno
130 m
Panificio Pizzeria Sergio Ricci
350 m
Oversize
490 m
Panetteria Pizzeria Pasticceria
530 m
La Bontà delle Tre Spighe
570 m
Bar Bar
Gate Caffè
180 m
Smallest chicchetteria
930 m
Bar, pasticceria, gelateria "Dolce Grazia"
1,1 Km
Bar Duetto
1,2 Km
La ghiacciaia
1,4 Km
Ristoranti Ristoranti
Sacro Cuore
240 m
Capriccio all'Italiana
590 m
Terra Arsa
760 m
I Cavalieri
860 m
Bruschetteria - Paninoteca di Mario Forcella
920 m
Mostra tutto

Caratteristiche

Rif.:
61149158
Piano:
Rialzato di 4
Totale piani:
4
Camere da letto:
2
Arredamento:
Assente
Condizionamento:
Assente
Mostra tutto
Prezzo Prezzo
€ 99.000
Rata mutuo Rata mutuo
€ 467 / mese
Spese annue Spese annue
€ 120
Proponi il tuo prezzoProponi il tuo prezzo

Classe Energetica

G
G
G
G
G
G
G
G
G
EP globale non rinnovabile:
108.38 kW h/m² anno
EP globale rinnovabile:
138.38 kW h/m² anno
EP invernale del fabbricato:
EP estiva del fabbricato:
Anno di costruzione:
1960
Riscaldamento:
Assente

Ti interessa visionare l'immobile?

Fissa un appuntamento  Fissa un appuntamento

Richiedi informazioni

Clicca su Leggi per aprire l'informativa
* Questi campi sono obbligatori

Calcola il tuo mutuo

Semplice e senza impegno
Anticipo

( % )
Mutuo

( % )

pochi semplici passi

inserisci i tuoi dati
Questionario completato
Grazie per aver richiesto un appuntamento senza impegno con un nostro Consulente del Credito e Assicurativo.

Hai inserito correttamente tutti i dati necessari e a breve riceverai una e-mail con un link da convalidare per inviare i tuoi dati.
Affiliato
Cassiopea Sas
Via Luigi Rovelli, 2/H 71122 Foggia (FG)

Il nostro staff


  • Marco Camerino
    Collaboratore

  • Francesca Gentile
    Coordinatrice

  • Riccardo Nimis
    Affiliato

  • Jacopo Pio Rubino
    Collaboratore
Via Luigi Rovelli, 2/H 71122 Foggia (FG)
Zona: Foggia-Parco San Felice-Comparto Biccari-Ospedale-Piazza Aldo Moro
Mostra su mappa
Orari: Lunedì - Venerdì 9.00/13.00 - 16.00/20.00 Sabato 9.00/13.00
Affiliato
Cassiopea Sas
Via Luigi Rovelli, 2/H 71122 Foggia (FG)

2025 Tecnocasa Franchising S.p.A. - P. IVA 08365160152 - Via Monte Bianco 60/A 20089 Rozzano (MI). Ogni agenzia ha un proprio titolare ed è autonoma. Privacy policy | Policy utilizzo | Cookie policy