Trilocale in vendita

Foggia, Via Vito Raffa - Candelaro
€ 39.000
3 locali 3 locali
63 Mq 63 Mq
1 bagno 1 bagno

Trilocale in vendita

Foggia, Via Vito Raffa - Candelaro

Descrizione annuncio

Zona Candelaro – Via Vito Raffa

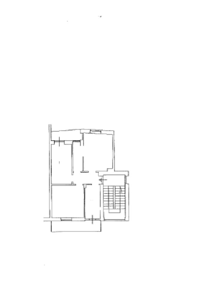
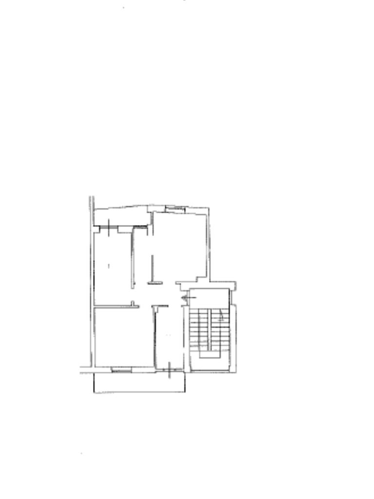
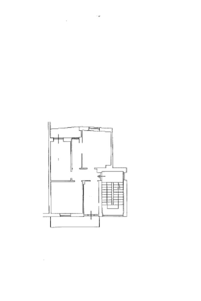
Proponiamo in vendita appartamento di 63 MQ, composto da 3 vani oltre accessori, posto al terzo piano di uno stabile privo di ascensore.

L’immobile rappresenta un’ottima opportunità per chi desidera personalizzare gli ambienti secondo il proprio gusto e le proprie esigenze. La soluzione è da rivedere, con impianti da rivisionare.

L’appartamento si compone di ingresso, soggiorno, camera da letto, cameretta con accesso su veranda, cucinino e bagno. L’immobile gode di doppia esposizione, che garantisce buona luminosità e aerazione degli ambienti. Presenta pavimentazione unica in marmo e infissi in legno.

Seguici anche su facebook e su instagram, cliccando 'mi piace' sulla pagina 'Agenzia Tecnocasa Zona Parco San Felice' .
Scarica gratuitamente anche l'App Tecnocasa sul tuo smartphone e sarai sempre aggiornato sulle nostre proposte di vendita e locazione.

Se hai bisogno di una consulenza reddituale per accedere ad una richiesta di mutuo possiamo esserti d'aiuto poichè è possibile, previo appuntamento, direttamente nella nostra agenzia, incontrare un Collaboratore di Kiron Partner SpA la società di mediazione creditizia del Gruppo Tecnocasa.

LA CONSULENZA E' GRATUITA.

Mostra tutto

Nelle vicinanze

Trasporto pubblico Trasporto pubblico
stazione di Foggia
stazione di Foggia
1,7 Km
fermata autobus
fermata autobus
30 m
Viale Candelaro (Manzi)
Viale Candelaro (Manzi)
150 m
Ricariche auto elettriche Ricariche auto elettriche
Daunia Soccorso Foggia | EnelX
1,9 Km
Concessionario Nissan Renauto S.P.A.
2,1 Km
Enel PAN Foggia Viale degli Aviatori
2,4 Km
Scuole Scuole
Istituto Comprensivo Santa Chiara, Pascoli e Altamura
150 m
Istituto Suore pie Operaie S. Giuseppe
500 m
Ugo Foscolo
610 m
Scuola dell'Infanzia "Giulia Catalano"
740 m
Scuola Elementare "Giulia Catalano"
740 m
Farmacia Farmacia
Farmacia Candelaro - Mazzamurro
110 m
Sacro Cuore
430 m
D.ssa Prencipe
630 m
Sant'Anna
640 m
Farmacia Centrale
750 m
Ospedali Ospedali
Dipartimento Dipendenze Patologiche
320 m
Casa della Divina Provvidenza Ospedale "Don Uva"
680 m
Ospedali Riuniti di Foggia
1,5 Km
Casa di Cura "Maria Grazia Barone"
1,8 Km
Clinica Colonnello D'Avanzo
1,9 Km
Supermercati Supermercati
Sigma
200 m
MD
280 m
EuroSpin
480 m
Penny
590 m
Supermercati dok
1,1 Km
Negozi Negozi
Panificio Pizzeria Caposeno
90 m
Oversize
410 m
Panificio Pizzeria Sergio Ricci
430 m
Panetteria Pizzeria Pasticceria
470 m
La Bontà delle Tre Spighe
540 m
Bar Bar
Gate Caffè
140 m
Smallest chicchetteria
880 m
Bar Duetto
1,2 Km
Bar, pasticceria, gelateria "Dolce Grazia"
1,2 Km
La ghiacciaia
1,3 Km
Ristoranti Ristoranti
Sacro Cuore
260 m
Capriccio all'Italiana
560 m
Terra Arsa
740 m
I Cavalieri
810 m
Bruschetteria - Paninoteca di Mario Forcella
1,0 Km
Mostra tutto

Caratteristiche

Rif.:
61186840
Piano:
3 di 4 (Piano medio)
Balconi:
2
Camere da letto:
2
Arredamento:
Assente
Condizionamento:
Autonomo
Mostra tutto
Prezzo Prezzo
€ 39.000
Rata mutuo Rata mutuo
€ 184 / mese
Proponi il tuo prezzoProponi il tuo prezzo

Classe Energetica

G
G
G
G
G
G
G
G
G
EP globale non rinnovabile:
108.38 kW h/m² anno
EP globale rinnovabile:
108.38 kW h/m² anno
EP invernale del fabbricato:
EP estiva del fabbricato:
Anno di costruzione:
1967
Riscaldamento:
Assente

Ti interessa visionare l'immobile?

Fissa un appuntamento  Fissa un appuntamento

Richiedi informazioni

Clicca su Leggi per aprire l'informativa
* Questi campi sono obbligatori

Calcola il tuo mutuo

Semplice e senza impegno
Anticipo

( % )
Mutuo

( % )

pochi semplici passi

inserisci i tuoi dati
Questionario completato
Grazie per aver richiesto un appuntamento senza impegno con un nostro Consulente del Credito e Assicurativo.

Hai inserito correttamente tutti i dati necessari e a breve riceverai una e-mail con un link da convalidare per inviare i tuoi dati.
Affiliato
Cassiopea Sas
Via Luigi Rovelli, 2/H 71122 Foggia (FG)

Il nostro staff


  • Marco Camerino
    Collaboratore

  • Riccardo Nimis
    Affiliato

  • Jacopo Pio Rubino
    Collaboratore
Via Luigi Rovelli, 2/H 71122 Foggia (FG)
Zona: Foggia-Parco San Felice-Comparto Biccari-Ospedale-Piazza Aldo Moro
Mostra su mappa
Orari: Lunedì - Venerdì 9.00/13.00 - 16.00/20.00 Sabato 9.00/13.00
Affiliato
Cassiopea Sas
Via Luigi Rovelli, 2/H 71122 Foggia (FG)

2026 Tecnocasa Franchising S.p.A. - P. IVA 08365160152 - Via Monte Bianco 60/A 20089 Rozzano (MI). Ogni agenzia ha un proprio titolare ed è autonoma. Privacy policy | Policy utilizzo | Cookie policy