Villa a schiera in vendita

Foggia, Via Antonio Rosiello
€ 255.000
Prezzo aggiornato
6 locali 6 locali
158 Mq 158 Mq
2 bagni 2 bagni

Villa a schiera in vendita

Foggia, Via Antonio Rosiello

Descrizione annuncio

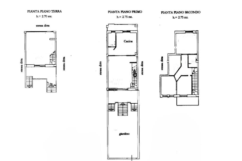
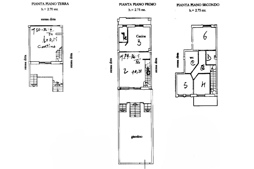
Proponiamo in vendita villetta a schiera situata in Via Antonio Rosiello, nel cuore del Comparto Biccari, una zona residenziale tranquilla e ben servita.

La soluzione si sviluppa su più livelli e si presenta in buono stato generale con pavimentazione in parquet e marmo, infissi in legno doppio vetro, porte in legno ed impianti idrico ed elettrico in buono stato.

Completano la soluzione inferriate, zanzariere e box auto di 34 mq, impianto fotovoltaico 6 kW e camino a pellet.

Seguici anche su facebook e su instagram, cliccando 'mi piace' sulla pagina 'Agenzia Tecnocasa Zona Parco San Felice' .
Scarica gratuitamente anche l'App Tecnocasa sul tuo smartphone e sarai sempre aggiornato sulle nostre proposte di vendita e locazione.

Se hai bisogno di una consulenza reddituale per accedere ad una richiesta di mutuo possiamo esserti d'aiuto poichè è possibile, previo appuntamento, direttamente nella nostra agenzia, incontrare un Collaboratore di Kiron Partner SpA la società di mediazione creditizia del Gruppo Tecnocasa.

LA CONSULENZA E' GRATUITA.

Mostra tutto

Nelle vicinanze

Trasporto pubblico Trasporto pubblico
V.le G. La Torre (91-105)
V.le G. La Torre (91-105)
130 m
V.le G. La Torre (330F-330Z)
V.le G. La Torre (330F-330Z)
150 m
Ricariche auto elettriche Ricariche auto elettriche
CITYCAR S.r.l. | EnelX
2,3 Km
Enel PAN Foggia Viale degli Aviatori
2,8 Km
Scuole Scuole
Scuola dell'Infanzia "Giulia Catalano"
720 m
Scuola Elementare "Giulia Catalano"
800 m
Scuola Media "Moscati"
930 m
Liceo Scientifico "A. Volta"
1,2 Km
Ugo Foscolo
1,3 Km
Farmacia Farmacia
Sacro Cuore
1,1 Km
D.ssa Prencipe
1,1 Km
Farmacia Candelaro - Mazzamurro
1,5 Km
Sant'Anna
1,8 Km
Farmacia Centrale
1,9 Km
Ospedali Ospedali
Casa della Divina Provvidenza Ospedale "Don Uva"
800 m
Ospedali Riuniti di Foggia
860 m
Medicina Universitaria
1,2 Km
Dipartimento Dipendenze Patologiche
1,8 Km
Clinica Colonnello D'Avanzo
2,5 Km
Supermercati Supermercati
Supermercati dok
980 m
Sigma
1,6 Km
EuroSpin
1,7 Km
MD
1,7 Km
Penny
1,8 Km
Negozi Negozi
Panificio Pizzeria Sergio Ricci
1,1 Km
Panificio Pizzeria Caposeno
1,5 Km
La Bontà delle Tre Spighe
1,7 Km
Oversize
1,8 Km
Panetteria Pizzeria Pasticceria
1,8 Km
Bar Bar
Bar, pasticceria, gelateria "Dolce Grazia"
1,1 Km
Gate Caffè
1,5 Km
Smallest chicchetteria
2,1 Km
Bar Duetto
2,3 Km
Bar
2,3 Km
Ristoranti Ristoranti
Bruschetteria - Paninoteca di Mario Forcella
730 m
Sacro Cuore
1,4 Km
Battista...L'arte della Pizza
1,4 Km
Capriccio all'Italiana
1,7 Km
Terra Arsa
1,8 Km
Mostra tutto

Caratteristiche

Rif.:
61169015
Piano:
2 di 2 (Piano su più livelli)
Box:
1
Balconi:
3
Camere da letto:
4
Arredamento:
Assente
Mostra tutto
Prezzo Prezzo
€ 255.000
Rata mutuo Rata mutuo
€ 1.202 / mese
Spese annue Spese annue
€ 0
Proponi il tuo prezzoProponi il tuo prezzo

Classe Energetica

G
G
G
G
G
G
G
G
G
EP globale non rinnovabile:
108.38 kW h/m² anno
EP globale rinnovabile:
108.38 kW h/m² anno
EP invernale del fabbricato:
EP estiva del fabbricato:
Anno di costruzione:
2000
Riscaldamento:
Autonomo
Tipo impianto:
A radiatori
Tipo alimentazione:
Metano

Prezzo ridotto di €1 (8%%)

Ti interessa visionare l'immobile?

Fissa un appuntamento  Fissa un appuntamento

Richiedi informazioni

Clicca su Leggi per aprire l'informativa
* Questi campi sono obbligatori

Calcola il tuo mutuo

Semplice e senza impegno
Anticipo

( % )
Mutuo

( % )

pochi semplici passi

inserisci i tuoi dati
Questionario completato
Grazie per aver richiesto un appuntamento senza impegno con un nostro Consulente del Credito e Assicurativo.

Hai inserito correttamente tutti i dati necessari e a breve riceverai una e-mail con un link da convalidare per inviare i tuoi dati.
Affiliato
Cassiopea Sas
Via Luigi Rovelli, 2/H 71122 Foggia (FG)

Il nostro staff


  • Marco Camerino
    Collaboratore

  • Riccardo Nimis
    Affiliato

  • Jacopo Pio Rubino
    Collaboratore
Via Luigi Rovelli, 2/H 71122 Foggia (FG)
Zona: Foggia-Parco San Felice-Comparto Biccari-Ospedale-Piazza Aldo Moro
Mostra su mappa
Orari: Lunedì - Venerdì 9.00/13.00 - 16.00/20.00 Sabato 9.00/13.00
Affiliato
Cassiopea Sas
Via Luigi Rovelli, 2/H 71122 Foggia (FG)

2026 Tecnocasa Franchising S.p.A. - P. IVA 08365160152 - Via Monte Bianco 60/A 20089 Rozzano (MI). Ogni agenzia ha un proprio titolare ed è autonoma. Privacy policy | Policy utilizzo | Cookie policy