Villa a schiera in vendita

Foggia, Via Attilio Benvenuto
€ 249.000
5 locali 5 locali
185 Mq 185 Mq
4 bagni 4 bagni

Villa a schiera in vendita

Foggia, Via Attilio Benvenuto

Descrizione annuncio

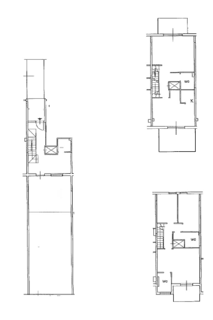
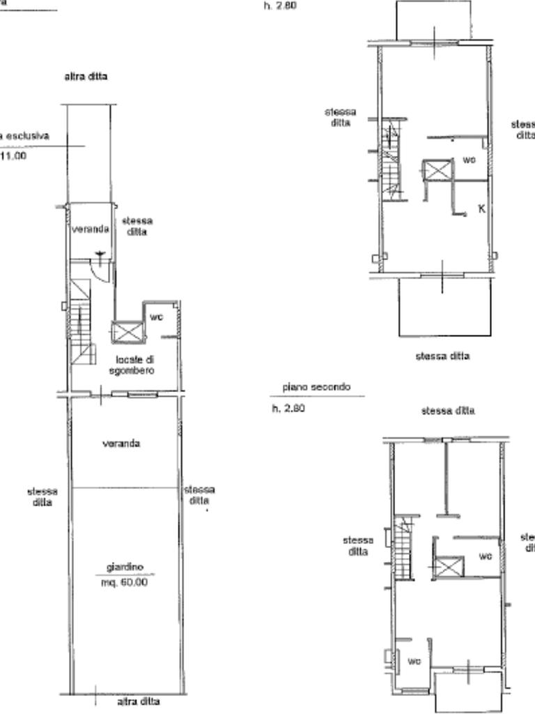
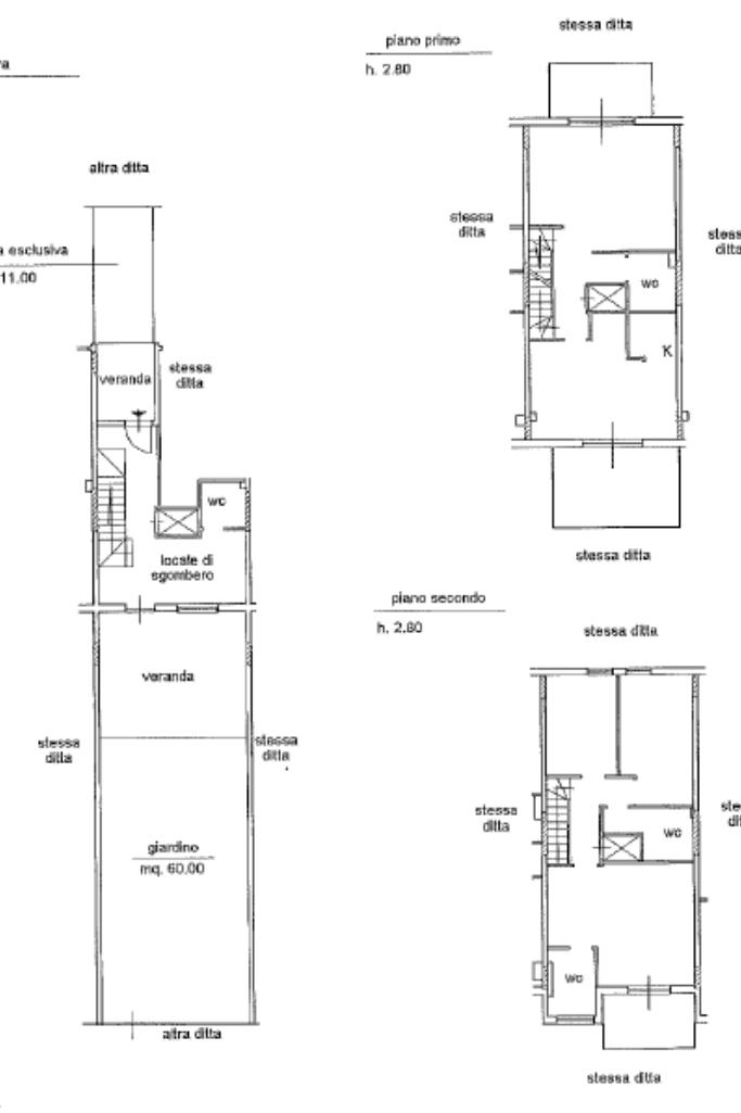
Proponiamo in vendita villetta a schiera costruita nel 2005, sviluppata su più livelli e composta da cinque vani oltre accessori, ideale per chi è alla ricerca di una soluzione abitativa ampia, funzionale e pronta da abitare.

L’immobile si presenta in ottime condizioni generali, grazie alla cura degli ambienti e al buono stato degli impianti. La soluzione è dotata di riscaldamento autonomo, infissi in PVC, pavimentazione in misto gres e porte interne in legno.

La distribuzione interna risulta ben organizzata.

Il piano terra si compone di ingresso, corridoio, bagno, ripostiglio e accesso diretto al giardino, spazio ideale da vivere nei momenti di relax. Il primo piano ospita la zona giorno composta da soggiorno, cucina, bagno e ripostiglio. Il secondo piano è dedicato alla zona notte e comprende una camera da letto matrimoniale con bagno in camera, due camerette, un ulteriore bagno e un comodo ripostiglio.

La presenza della doppia esposizione garantisce ambienti luminosi. Inoltre, l'immobile vanta la predisposizione per l'installazione di un ascensore interno, soluzione che può aumentare ulteriormente il comfort abitativo.

Completa la proprietà un comodo box auto di circa 20 mq.

Si tratta di una soluzione ideale per famiglie o per chi desidera una villetta indipendente, inserita in un contesto residenziale tranquillo.

Seguici anche su facebook e su instagram, cliccando 'mi piace' sulla pagina 'Agenzia Tecnocasa Zona Parco San Felice' .
Scarica gratuitamente anche l'App Tecnocasa sul tuo smartphone e sarai sempre aggiornato sulle nostre proposte di vendita e locazione.

Se hai bisogno di una consulenza reddituale per accedere ad una richiesta di mutuo possiamo esserti d'aiuto poichè è possibile, previo appuntamento, direttamente nella nostra agenzia, incontrare un Collaboratore di Kiron Partner SpA la società di mediazione creditizia del Gruppo Tecnocasa.

LA CONSULENZA E' GRATUITA.

Mostra tutto

Nelle vicinanze

Trasporto pubblico Trasporto pubblico
stazione di Foggia
stazione di Foggia
2,9 Km
V.le G. La Torre (91-105)
V.le G. La Torre (91-105)
290 m
V.le G. La Torre (330F-330Z)
V.le G. La Torre (330F-330Z)
310 m
Ricariche auto elettriche Ricariche auto elettriche
CITYCAR S.r.l. | EnelX
2,2 Km
Enel PAN Foggia Viale degli Aviatori
2,6 Km
Scuole Scuole
Scuola dell'Infanzia "Giulia Catalano"
580 m
Scuola Elementare "Giulia Catalano"
620 m
Scuola Media "Moscati"
690 m
Liceo Scientifico "A. Volta"
920 m
Ugo Foscolo
1,1 Km
Farmacia Farmacia
D.ssa Prencipe
940 m
Sacro Cuore
940 m
Farmacia Candelaro - Mazzamurro
1,3 Km
Sant'Anna
1,6 Km
Farmacia Centrale
1,7 Km
Ospedali Ospedali
Ospedali Riuniti di Foggia
630 m
Casa della Divina Provvidenza Ospedale "Don Uva"
760 m
Medicina Universitaria
1,0 Km
Dipartimento Dipendenze Patologiche
1,6 Km
Clinica Colonnello D'Avanzo
2,3 Km
Supermercati Supermercati
Supermercati dok
730 m
Sigma
1,5 Km
MD
1,6 Km
EuroSpin
1,6 Km
Penny
1,7 Km
Negozi Negozi
Panificio Pizzeria Sergio Ricci
940 m
Panificio Pizzeria Caposeno
1,3 Km
La Bontà delle Tre Spighe
1,5 Km
Panetteria Pizzeria Pasticceria
1,7 Km
Oversize
1,7 Km
Bar Bar
Bar, pasticceria, gelateria "Dolce Grazia"
810 m
Gate Caffè
1,3 Km
Smallest chicchetteria
1,9 Km
Bar
2,1 Km
Bar Duetto
2,1 Km
Ristoranti Ristoranti
Bruschetteria - Paninoteca di Mario Forcella
490 m
Battista...L'arte della Pizza
1,2 Km
Sacro Cuore
1,2 Km
Capriccio all'Italiana
1,5 Km
Terra Arsa
1,6 Km
Mostra tutto

Caratteristiche

Rif.:
61191701
Piano:
3 di 3 (Piano su più livelli)
Box:
1
Balconi:
3
Camere da letto:
1
Arredamento:
Completo
Mostra tutto
Prezzo Prezzo
€ 249.000
Rata mutuo Rata mutuo
€ 1.177 / mese
Spese annue Spese annue
€ 0
Proponi il tuo prezzoProponi il tuo prezzo

Classe Energetica

F
F
F
F
F
F
F
F
F
EP invernale del fabbricato:
EP estiva del fabbricato:
Anno di costruzione:
2005
Riscaldamento:
Autonomo
Tipo impianto:
A radiatori
Tipo alimentazione:
Metano

Ti interessa visionare l'immobile?

Fissa un appuntamento  Fissa un appuntamento

Richiedi informazioni

Clicca su Leggi per aprire l'informativa
* Questi campi sono obbligatori

Calcola il tuo mutuo

Semplice e senza impegno
Anticipo

( % )
Mutuo

( % )

pochi semplici passi

inserisci i tuoi dati
Questionario completato
Grazie per aver richiesto un appuntamento senza impegno con un nostro Consulente del Credito e Assicurativo.

Hai inserito correttamente tutti i dati necessari e a breve riceverai una e-mail con un link da convalidare per inviare i tuoi dati.
Affiliato
Cassiopea Sas
Via Luigi Rovelli, 2/H 71122 Foggia (FG)

Il nostro staff


  • Marco Camerino
    Collaboratore

  • Riccardo Nimis
    Affiliato

  • Jacopo Pio Rubino
    Collaboratore
Via Luigi Rovelli, 2/H 71122 Foggia (FG)
Zona: Foggia-Parco San Felice-Comparto Biccari-Ospedale-Piazza Aldo Moro
Mostra su mappa
Orari: Lunedì - Venerdì 9.00/13.00 - 16.00/20.00 Sabato 9.00/13.00
Affiliato
Cassiopea Sas
Via Luigi Rovelli, 2/H 71122 Foggia (FG)

2026 Tecnocasa Franchising S.p.A. - P. IVA 08365160152 - Via Monte Bianco 60/A 20089 Rozzano (MI). Ogni agenzia ha un proprio titolare ed è autonoma. Privacy policy | Policy utilizzo | Cookie policy